• Inicio
  •  
  •  
  •  

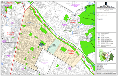
Comuna 11-Barrio 1114-los Colores

Contiene las manzanas, lotes y nomenclatura de Barrio Los colores que pertenece a la Comuna 11, Laureles Estadio, del Municipio de Medellin, según decreto 346 de 2000, con equipamientos y espacio publico. La información relacionada con los equipamientos y espacio publico que se puede visualizar en el siguiente mapa corresponde con una actualización realizada por el Departamento Administrativo de Planeación a octubre de 2016 de acuerdo a ajustes de cartográficos y a la incorporación de lotes o nuevas construcciones con esta destinación. La información de equipamientos y espacio publico aprobada con el Acuerdo 048 de 2014.

Simple

Date (Publication)
2019-11-12
Edition
2019
Presentation form
Digital map
Purpose
Se realizó con el fin de facilitar la información básica de esta comuna, tanto al usuario interno como externo
Custodian
  Alcaldía de Medellín - Departamento Administrativo de Planeación - Subdirección de Prospectiva, Información y Evaluación Estratégica - Unidad de Planeación de la Información ( Unidad Administrativa )
Calle 44 # 52 - 165 Centro Administrativo Municipal Piso 8 , Medellín , Antioquia , 050019 ,
Hours of service
Atención de lunes a viernes de 7:30 am. a 12:00 pm. y de 1:30 am. a 5:00 pm.
Temáticas MinTIC
  • Mapas Nacionales
Place
  • Comuna 11
  • Los Colores
Theme
  • Equipamientos
  • Barrios
  • Espacio público
  • Catálogo de Mapas
Keywords
Use limitation
El usuario es libre de compartir y/o adaptar este dato para cualquier propósito, siempre y cuando se otorguen los créditos a la Alcaldía de Medellín, así mismo se debe compartir mediante el mismo licenciamiento e indicar los cambios realizados con respecto al dato original.
Denominator
4500
Metadata language
Spanish; Castilian
Character set
UTF8
Topic category
  • Location
Environment description
Version 6.2 (Build 9200) ; Esri ArcGIS 10.8.1.14362
Description
Medellín
Begin date
2014-12-31T00:00:00
End date
2016-10-06T00:00:00
Supplemental Information
Plano elaborado para La Mapoteca Digital del Departamento Administrativo de Planeación, Subdirección de Información y Evaluación Estratégica
Reference system identifier
EPSG / MAGNA Origen Medellin 2010 / 8.2.1(10.2.1)
Topology level
Geometry only
Geometric object type
Point
Distribution format
  • PDF ()

OnLine resource
https://www.medellin.gov.co/servicios/metadatos_gis/CatalogoMapas/PDF/1114-Los-Colores-T.pdf ( WWW:DOWNLOAD-1.0-http--download )
Statement
Este producto cumple con la división político administrativa por Barrios según Decreto 346 de 2000
File identifier
56a9718e-bf9e-4e0b-bf44-46129e224be1 XML
Metadata language
Spanish; Castilian
Character set
UTF8
Hierarchy level
Collection session
Hierarchy level name
PDF
Date stamp
2024-09-18T14:36:43
Metadata standard name
ISO 19139 Geographic Information - Metadata - Implementation Specification
Metadata standard version
2007
Author
  Alcaldía de Medellín - Departamento Administrativo de Planeación - Subdirección de Prospectiva, Información y Evaluación Estratégica - Unidad de Planeación de la Información - Victor Hugo Gutierrez Velasquez ( Técnico Administrativo )
Calle 44 # 52 - 165 Centro Administrativo Municipal Piso 8 , Medellín , Antioquia , 050019 ,
Hours of service
Atención de lunes a viernes de 7:30 am. a 12:00 pm. y de 1:30 am. a 5:00 pm.
 
 

Overviews

overview

Spatial extent

Keywords

Barrios Catálogo de Mapas Equipamientos Espacio público

Provided by

logo

Share on social sites

Access to the portal
Read here the full details and access to the data.

Associated resources

Not available


  •  
  •  
  •