From 1 - 10 / 438
  • Categories  

    Contiene lotes y nomenclatura de la vereda Piedras Blancas Matasano que pertenece al Corregimiento de Santa Elena del Municipio de Medellin, según decreto 346 de 2000, con equipamientos y espacio publico. La información relacionada con los equipamientos y espacio publico que se puede visualizar en el siguiente mapa corresponde con una actualización realizada por el Departamento Administrativo de Planeación a octubre de 2016 de acuerdo a ajustes de cartográficos y a la incorporación de lotes o nuevas construcciones con esta destinación. La información de equipamientos y espacio publico aprobada con el Acuerdo 048 de 2014.

  • Categories  

    Contiene las manzanas, lotes y nomenclatura del área Institucionales Cerro Administrativo que pertenece a la Comuna 16 Belén del Municipio de Medellín, según decreto 346 de 2000, con equipamientos y espacio publico. La información relacionada con los equipamientos y espacio publico que se puede visualizar en el siguiente mapa corresponde con una actualización realizada por el Departamento Administrativo de Planeación a octubre de 2016 de acuerdo a ajustes de cartográficos y a la incorporación de lotes o nuevas construcciones con esta destinación. La información de equipamientos y espacio publico aprobada con el Acuerdo 048 de 2014.

  • Categories  

    Contiene lotes y nomenclatura de la vereda El Astillero que pertenece al Corregimiento de San Antonio de Prado del Municipio de Medellin, según decreto 346 de 2000, con equipamientos y espacio publico. La información relacionada con los equipamientos y espacio publico que se puede visualizar en el siguiente mapa corresponde con una actualización realizada por el Departamento Administrativo de Planeación a octubre de 2016 de acuerdo a ajustes de cartográficos y a la incorporación de lotes o nuevas construcciones con esta destinación. La información de equipamientos y espacio publico aprobada con el Acuerdo 048 de 2014.

  • Categories  

    Contiene lotes y nomenclatura de la vereda El Jardín que pertenece al Corregimiento de Altavista del Municipio de Medellin, según decreto 346 de 2000, con equipamientos y espacio publico. La información relacionada con los equipamientos y espacio publico que se puede visualizar en el siguiente mapa corresponde con una actualización realizada por el Departamento Administrativo de Planeación a octubre de 2016 de acuerdo a ajustes de cartográficos y a la incorporación de lotes o nuevas construcciones con esta destinación. La información de equipamientos y espacio publico aprobada con el Acuerdo 048 de 2014.

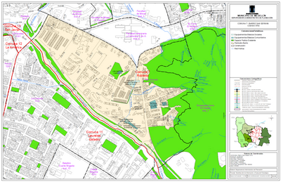
  • Categories  

    Contiene las manzanas, lotes y nomenclatura de Barrio Estadio que pertenece a la Comuna 11, Laureles Estadio, del Municipio de Medellin, según decreto 346 de 2000, con equipamientos y espacio publico. La información relacionada con los equipamientos y espacio publico que se puede visualizar en el siguiente mapa corresponde con una actualización realizada por el Departamento Administrativo de Planeación a octubre de 2016 de acuerdo a ajustes de cartográficos y a la incorporación de lotes o nuevas construcciones con esta destinación. La información de equipamientos y espacio publico aprobada con el Acuerdo 048 de 2014.

  • Categories  

    Contiene las manzanas, lotes y nomenclatura de Barrio Asomadera N°3 que pertenece a la Comuna 9, Buenos Aires, del Municipio de Medellin, según decreto 346 de 2000, con equipamientos y espacio publico. La información relacionada con los equipamientos y espacio publico que se puede visualizar en el siguiente mapa corresponde con una actualización realizada por el Departamento Administrativo de Planeación a octubre de 2016 de acuerdo a ajustes de cartográficos y a la incorporación de lotes o nuevas construcciones con esta destinación. La información de equipamientos y espacio publico aprobada con el Acuerdo 048 de 2014.

  • Categories  

    Contiene lotes y nomenclatura de la vereda La Ilusión que pertenece al Corregimiento de San Cristóbal del Municipio de Medellin, según decreto 346 de 2000, con equipamientos y espacio publico. La información relacionada con los equipamientos y espacio publico que se puede visualizar en el siguiente mapa corresponde con una actualización realizada por el Departamento Administrativo de Planeación a octubre de 2016 de acuerdo a ajustes de cartográficos y a la incorporación de lotes o nuevas construcciones con esta destinación. La información de equipamientos y espacio publico aprobada con el Acuerdo 048 de 2014.

  • Categories  

    Contiene la división político administrativa de la Comuna 2 del Municipio de Medellín, según decreto 346 de 2000, con equipamientos y espacio público. Los barrios que la conforman son: La Isla, Playón de Los Comuneros, Pablo VI, La Frontera, La Francia, Andalucía, Villa del Socorro, Villa Niza, Moscú No.1, Santa Cruz y La Rosa. La información relacionada con los equipamientos y espacio público que se puede visualizar en el siguiente mapa corresponde con una actualización realizada por el Departamento Administrativo de Planeación a diciembre de 2007 de acuerdo a ajustes cartográficos y a la incorporación de lotes o nuevas construcciones con esta destinación. La información de equipamientos y espacio público aprobada con el Acuerdo 48 de 2014, puede consultarse bajo la opción de Mapas Protocolizados

  • Categories  

    Contiene las manzanas, lotes y nomenclatura de Barrio Las Palmas que pertenece a la Comuna 10, La Candelaria, del Municipio de Medellin, según decreto 346 de 2000, con equipamientos y espacio publico. La información relacionada con los equipamientos y espacio publico que se puede visualizar en el siguiente mapa corresponde con una actualización realizada por el Departamento Administrativo de Planeación a octubre de 2016 de acuerdo a ajustes de cartográficos y a la incorporación de lotes o nuevas construcciones con esta destinación. La información de equipamientos y espacio publico aprobada con el Acuerdo 048 de 2014.

  • Categories  

    Contiene las manzanas, lotes y nomenclatura del Barrio Versalles N°1 perteneciente a la Comuna 3, Manrique, del Municipio de Medellin, según decreto 346 de 2000, con equipamientos y espacio publico. La información relacionada con los equipamientos y espacio publico que se puede visualizar en el siguiente mapa corresponde con una actualización realizada por el Departamento Administrativo de Planeación a octubre de 2016 de acuerdo a ajustes de cartográficos y a la incorporación de lotes o nuevas construcciones con esta destinación. La información de equipamientos y espacio publico aprobada con el Acuerdo 048 de 2014.